3805
38' Singles
Oakville ON
38' Singles
Oakville ON
Elevation A
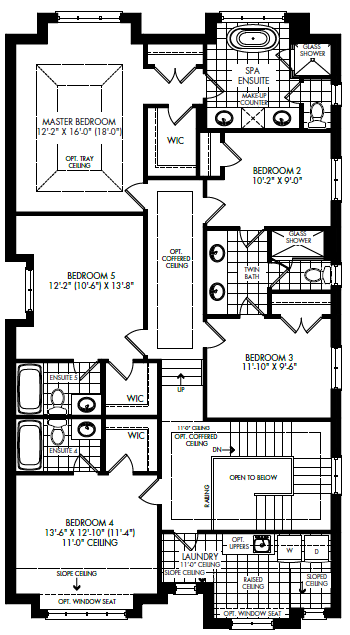
4 Bedrooms
4 Full Bath
1 Half Bath
4 Full Bath
1 Half Bath
3,047 SQ.FT.
PRICE
Contact us
Floorplans Download floorplan
Ground
Second
Second (5 bdrm.)
Basement
Basement (opt.)
More 38' Singles View All Floorplans
Stay in the Loop
Thank you for your interest in Joshua Creek Montage.
By registering, you’re now connected and will be among the first to learn about new pricing, incentives, and community events.


